Mieszkanie na sprzedaż Trzebownisko, Zaczernie

2 pokoje
43.50 m²
13 344,60 zł/m2
3 piętro
DHB-MS-6116
Oblicz ratę kredytu

580 490 zł

Mieszkanie na sprzedaż
Bez prowizji

Szczegóły oferty

Symbol oferty DHB-MS-6116
Powierzchnia 43,50 m²
Powierzchnia użytkowa [m2] 43,50 m²
Liczba pokoi 2
Rodzaj budynku apartamentowiec
Technologia budowlana tradycyjna
Standard
Piętro 3
Liczba pięter w budynku 3
Stan lokalu bardzo dobry
Okna PCV
Instalacje dobre
Balkon jest
Liczba balkonów 1
Rok budowy 2025
Gaz brak
Woda jest
Dojazd asfalt
Otoczenie działki zabudowane
Ogrzewanie C.O. GAZOWE
Umeblowanie pełne
Odl. do sklepu [m] 100 m
Winda tak
Liczba wind 1
Usytuowanie jednostronne
Drzwi antywłamaniowe tak
Pomieszczenia
Liczba łazienek 1
Piotr Koguc

Piotr Koguc

Specjalista ds. nieruchomości

Napisz wiadomość 19 Ofert

Opis nieruchomości

BEZ PCC | BEZ PROWIZJI | MIESZKANIE POD KLUCZ


Biuro Nieruchomości Dream House Brokers ma przyjemność zaprezentować Państwu na sprzedaż komfortowe, w pełni wykończone, dwupokojowe mieszkanie, zlokalizowane w miejscowości Zaczernie, w bezpośrednim sąsiedztwie Rzeszowa. Nieruchomość o powierzchni 43,50 m² usytuowana jest w nowoczesnym apartamentowcu o podwyższonym standardzie, wyposażonym w windę oraz prywatną siłownię dostępną wyłącznie dla mieszkańców. Mieszkanie zostało wykończone w spójnym, nowoczesnym stylu, z naciskiem na funkcjonalność, estetykę oraz komfort codziennego użytkowania. Jasne wnętrza, przemyślany układ pomieszczeń oraz pełne wyposażenie sprawiają, że lokal jest gotowy do zamieszkania bez ponoszenia dodatkowych nakładów finansowych. Dodatkowym atutem jest klimatyzacja.

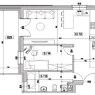
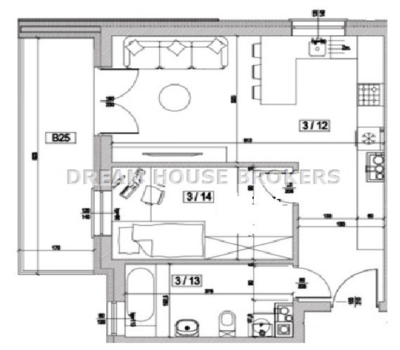
Mieszkanie składa się z:

  • salonu z aneksem kuchennym

  • sypialni

  • łazienki

  • przedpokoju

  • przestronnego balkonu

Do mieszkania przynależy:

  • komórka lokatorska – 8 000 zł

  • przypisane miejsce postojowe przed budynkiem (w cenie nieruchomości)

  • możliwość dokupienia drugiego miejsca parkingowego w cenie 15 000 zł

Lokalizacja:
Zaczernie to jedna z najbardziej dynamicznie rozwijających się lokalizacji w bezpośrednim sąsiedztwie Rzeszowa. Nieruchomość położona jest zaledwie 500–600 metrów od granicy miasta, co zapewnia szybki i wygodny dojazd do centrum Rzeszowa, Portu Lotniczego Rzeszów–Jasionka oraz węzła Autostrady A4. Spokojne otoczenie oraz dobra infrastruktura komunikacyjna czynią to miejsce wyjątkowo komfortowym do życia.

Mieszkanie dostępne od zaraz!

Cena: 580 489 zł + 8 000 zł komórka lokatorska

Kupujący nie płaci prowizji oraz podatku PCC!

Zapraszamy do kontaktu z naszym biurem!


Piotr Koguc, tel/WhatsApp: 537 840 720





Informacja ustawowa: oficjalna strona internetowa dewelopera: marland.pl

Lokalizacja nieruchomości

Kalkulatory

Kalkulator kredytowy

Wysokość raty

PLN
%

Podobne oferty

Bez prowizji

Mieszkanie na sprzedaż

Trzebownisko, Zaczernie

2 pokoje 66 m2 10 500,00 zł/m2
Bez prowizji
Bez prowizji

Mieszkanie na sprzedaż

Trzebownisko, Zaczernie

2 pokoje 51 m2 12 827,89 zł/m2
Bez prowizji

Specjalista ds. nieruchomości

Proszę wprowadzić poprawne imię i nazwisko
Proszę wprowadzić poprawny numer telefonu
Proszę wprowadzić poprawny adres e-mail
Proszę zaznaczyć wymagane zgody
Rozwiąż równanie:
13 8
Niepoprawny wynik