Mieszkanie na sprzedaż Rzeszów, Św. Kingi

2 pokoje
40.05 m²
10 986,27 zł/m2
5 piętro
DHB-MS-5115
Oblicz ratę kredytu

440 000 zł

Mieszkanie na sprzedaż
Oferta specjalna

Szczegóły oferty

Symbol oferty DHB-MS-5115
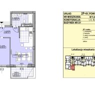
Powierzchnia 40,05 m²
Liczba pokoi 2
Rodzaj budynku budynek wielorodzinny
Technologia budowlana tradycyjna
Standard
Piętro 5
Liczba pięter w budynku 6
Stan lokalu deweloperski
Okna PCV
Rok budowy 2024
Dojazd ASFALTOWA
Otoczenie zabudowa wielorodzinna
Ogrzewanie C.O. GAZOWE
Winda tak
Usytuowanie dwustronne
Pomieszczenia
Paula Trzeciak

Paula Trzeciak

Licencjonowany Pośrednik ds. Nieruchomości 29430

Napisz wiadomość 36 Ofert

Opis nieruchomości

Biuro nieruchomości Dream House Brokers prezentuje na sprzedaż nową ofertę mieszkań w metrażach od 40 do 64 m2.

Inwestycja charakteryzuje się przemyślanymi i funkcjonalnymi rozkładami. Projektując nowe mieszkania w Rzeszowie Inwestor stara się, aby wszystkie w jak największym stopniu wykorzystywały naturalne oświetlenie. Tam, gdzie jest to możliwe stosujemy naturalne materiały budowlane. Wieloletnie doświadczenie deweloperskie daje gwarancję, że nasze  osiedla i  mieszkania będą w maksymalnym stopniu spełniały oczekiwania przyszłych mieszkańców w zakresie estetyki oraz komfortu użytkowania. Klientom przekazywane będą nowe mieszkania wraz z kompleksowym zagospodarowaniem terenu wokół budynku. Projekt powstawał w porozumieniu z doświadczonymi w branży budowlanej architektami i projektantami wnętrz, designerami otoczenia i terenów zielonych, wprowadzając udogodnienia i innowacje, których misją jest wysoki komfort życia i satysfakcja z użytkowania nowych mieszkań.

Lokalizacja: Mieszkania zlokalizowane przy ul. Św. Kingi, co zapewnia szybki dostęp do wszystkich udogodnień miejskiego życia. Z jednej strony oferujemy spokojne otoczenie, z drugiej natomiast – bliskość do komunikacji publicznej oraz infrastruktury handlowo-usługowej.

Atuty lokalizacji:

- Dogodny dojazd do centrum miasta.
- Bezproblemowy wjazd na autostrady A4 i S19.
Bliskość parków, sklepów, placówek edukacyjnych i innych ważnych punktów.

Standard Mieszkań: Mieszkania cechuje nowoczesny design oraz wysoki standard wykończenia. Zastosowane rozwiązania pozwalają na maksymalne wykorzystanie przestrzeni, co sprawia, że każde pomieszczenie jest funkcjonalne i przytulne.

Dodatkowe Atuty:

- Przestronne balkony z widokiem na okolicę.
- Bezpieczne osiedle.
- Miejsca postojowe oraz garażowe dla mieszkańców.
- Do mieszkania przynależna jest komórka lokatorska (metraż do wyboru) znajdująca się na poziomie -1 (wielkość 3,0 do 9 m2) w cenie od 4000 zł brutto/m2 lub na piętrze w cenie 6000zł/m2
-
Jest możliwość dokupienia dodatkowo dużego schowka

- Stanowisko postojowe przed budynkiem w cenie 18 000 zł brutto
Miejsce postojowe w garażu podziemnym 40 000 zł brutto - sprzedawane tylko do mieszkań pow. 60m2
 

Komórkę i miejsce postojowe należy wykupić razem z mieszkaniem.

Zapraszamy do kontaktu na prezentację pozostałych mieszkań z tej oraz innych Inwestycji z Rynku Pierwotnego w Rzeszowie i okolicach.
W naszym biurze porównasz oferty deweloperów i bezpiecznie dokonasz zakupu z naszą pomocą.
Zakup bez podatku PCC i prowizji

Kontakt: Paula Trzeciak Telefon: 534 930 004

Zadzwoń teraz i dowiedz się więcej!
• Pomożemy w zbadaniu zdolności kredytowej całkowicie bezpłatnie.
• Dbając o bezpieczeństwo transakcji, stale współpracujemy z kancelarią radcy prawnego, dzięki czemu macie Państwo możliwość konsultacji przy transakcjach związanych z obrotem nieruchomościami.

Lokalizacja nieruchomości

Kalkulatory

Kalkulator kredytowy

Wysokość raty

PLN
%

Podobne oferty

Bez prowizji

Mieszkanie na sprzedaż

Rzeszów, Budziwój

4 pokoje 120 m2 4 730,68 zł/m2
Bez prowizji

Mieszkanie na sprzedaż

Rzeszów

2 pokoje 45 m2 9 500,00 zł/m2
Oferta specjalna

Mieszkanie na sprzedaż

Rzeszów

1 pokoj 27 m2 12 010,35 zł/m2
Oferta specjalna
Oferta specjalna

Mieszkanie na sprzedaż

Rzeszów

3 pokoje 48 m2 8 900,00 zł/m2
Oferta specjalna

Licencjonowany Pośrednik ds. Nieruchomości 29430

Proszę wprowadzić poprawne imię i nazwisko
Proszę wprowadzić poprawny numer telefonu
Proszę wprowadzić poprawny adres e-mail
Proszę zaznaczyć wymagane zgody
Rozwiąż równanie:
23 1
Niepoprawny wynik